
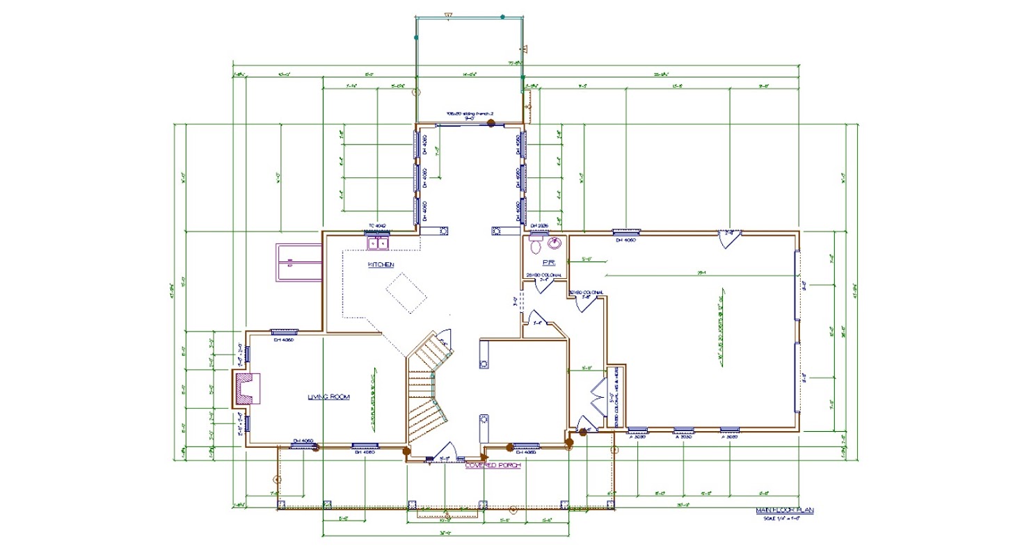
3000 +/- Sq. ft.
Farmer's Porch
4 Bedrooms
2.5 Baths
Double sink in Master bath
2 Car Garage
Hardwood & Tile throughout
14X14 Sunrooom
14X14 Rear Deck
Kitchen Appliances Included
Includes Well & Septic
Gas Fireplace
Granite Countertops
Call for Pricing



