Contact Us

Call Robie Builders
(207) 892-0650

 

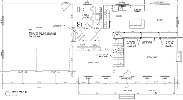
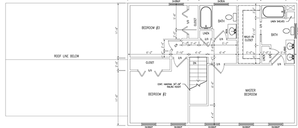
Colonial

1750 +/- Sq. ft.
Farmer's Porch
3 Bedrooms
2.5 Baths
2 Car Garage
1st Floor to have Hardwood & Tile
2nd Floor to have Hardwood in Hallway & Carpet in the Bedrooms
12x12 Rear deck
Kitchen Appliances Included
Includes Well & Septic 

 

Call for Pricing