
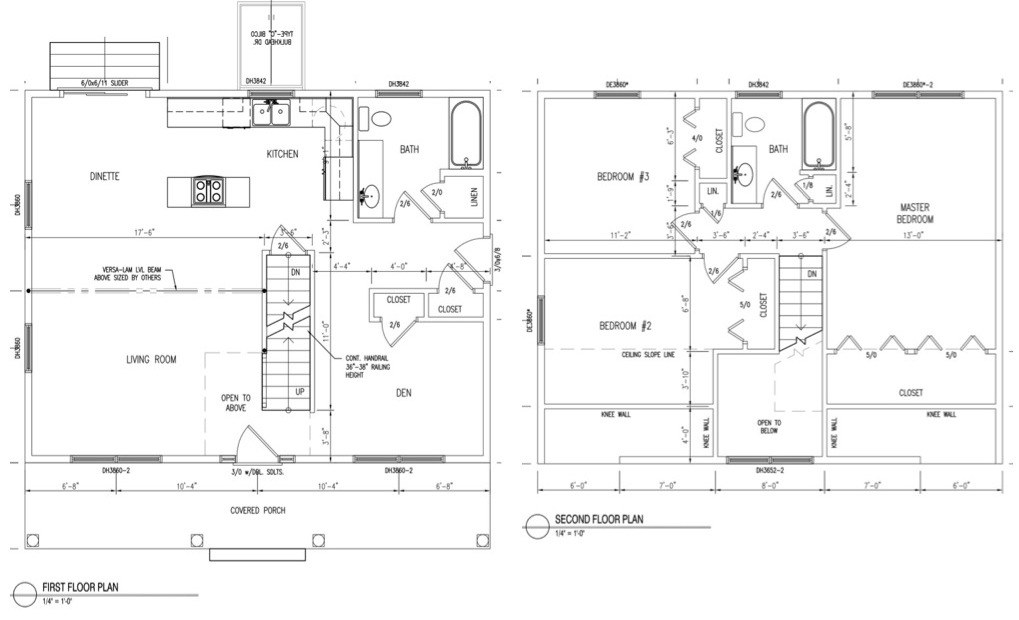
1632 Sq. Ft Fully Dormered
1.5 Baths
1st Floor Laundry
3 Bedrooms
12x12 Rear Deck
1st Floor to have Tile & Hardwood
2nd Floor to have Carpet
Kitchen Appliances Included
Includes Well & Septic
Call for Pricing
A garage can be added for $27,000
Gas Fireplace can be added for $4,600
*Pricing subject to change based on permit fees and other associated costs not mentioned above.

